施設概要
| 施設の名称 | 新潟市バイオリサーチセンター |
|---|---|
| 用途 | 研究所 |
| 構造 | 鉄骨造 |
| 耐火・準耐火 | 準耐火建築物(□準耐-2) |
| 建築面積 | 394.85㎡ |
| 延床面積 | 1094.51㎡ |
1.外景







2.施設平面図
3.施設詳細
共同利用研究室-1 【スタッフルーム】
| 室面積 | 32.7㎡ |
|---|---|
| 天井高 | 2.8m |
| 床 | タイルカーペット |
| 壁 | AEP塗装 下地石膏ボード |
| 天井 | 岩綿吸音板 |
| 床加重 | 5,000N/㎡ |
| 電気 | 電灯、コンセント、基準盤より分岐増設可 |

共同利用研究室-1 【クッキングシアター、加工室、実験室】
| 室面積 | 90.6㎡ |
|---|---|
| 天井高 | - |
| 床 | 長尺シート |
| 壁 | AEP塗装 下地石膏ボード |
| 天井 | 化粧石膏ボード |
| 床加重 | 5,000N/㎡ |
| 電気 | 電灯、コンセント、機器用動力電源、基準盤・実験盤より分岐増設可 |

共同利用研究室-2~5、8~11
| 室面積 | 26.9~30.7㎡ |
|---|---|
| 天井高 | - |
| 床 | 長尺シート |
| 壁 | AEP塗装 下地石膏ボード |
| 天井 | SOP塗装(デッキ現し) |
| 床加重 | 4,000N/㎡ |
| 電気 | 電灯、リーラーコンセント、基準盤・実験版より分岐増設可 ケーブルラックw300設置済 |


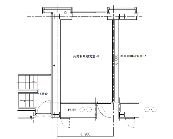
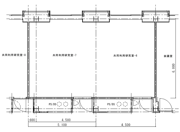
共同利用研究室-6、7
| 室面積 | 28.4㎡、32.1㎡ |
|---|---|
| 天井高 | 2.8m |
| 床 | タイルカーペット |
| 壁 | AEP塗装 下地石膏ボード |
| 天井 | 岩綿吸音板 |
| 床加重 | 4,000N/㎡ |
| 電気 | 電灯、コンセント、基準盤より分岐増設可 |

研究・実験室-1,2
| 室面積 | 30.7㎡ |
|---|---|
| 天井高 | - |
| 床 | 長尺シート |
| 壁 | AEP塗装 下地石膏ボード |
| 天井 | SOP塗装(デッキ現し) |
| 床加重 | 5,000N/㎡ |
| 電気 | 電灯、コンセント、基準盤より分岐増設可 |

研究・実験室-3、4
| 室面積 | 16.9㎡、11.2㎡ |
|---|---|
| 天井高 | - |
| 床 | 長尺シート |
| 壁 | AEP塗装 下地石膏ボード |
| 天井 | 化粧石膏ボード |
| 床加重 | 4,000N/㎡ |
| 電気 | 電灯、コンセント、基準盤より分岐増設可 |

分析・測定室-1、2
| 室面積 | 28.4㎡、23.3㎡ |
|---|---|
| 天井高 | - |
| 床 | 長尺シート |
| 壁 | AEP塗装 下地石膏ボード |
| 天井 | SOP塗装(デッキ現し) |
| 床加重 | 4,000N/㎡ |
| 電気 | 電灯、コンセント、基準盤より分岐増設可 |

4.施設機能
「新潟バイオリサーチパーク」における研究開発等事業を推進するため、新潟市バイオリサーチセンターは以下の機能を備えています。
◇食品安全性研究開発
新潟県は「美味しい食料生産県」として既に一定の地位を確保しており、食料一次産業の他それらの加工産業である食品関連産業が活発です。しかしながら、さらなる発展を目指すためには、この「美味しい食料生産県」というイメージに、昨今の食の安全性に関わる諸問題等から食の安全・安心のテクノロジーでの優位性を加えることが必須となっています。食品安全性に関する技術開発の推進や、科学的調査並びにデータベースの構築等にご活用ください。
尚、他の研究室に影響を与えないための措置として前室(エアシャワー等除外設備設置可能)を設置、食品製造過程で病原菌が混入した場合の対応方法等の実験も可能となっています。
◇資源リサイクル研究開発
昨今の大量生産、大量消費、大量廃棄型の社会経済活動やライフスタイルは、多量な資源を必要とするとともに、環境に大きな負荷を与え問題となっています。 このような背景のもと、環境負荷低減や生態系保全等、資源リサイクルのための基礎及び応用研究を推進し開発を進める場としてご活用ください。
◇遺伝子組換え研究開発
健康に有用な食素材や環境保全等に活用できる素材開発等、遺伝子組換え技術の研究開発を推進する場としてご活用ください。
◇機能性食品研究開発
社会の成熟に連れて糖尿病や癌、痴呆などの生活習慣や老化を原因とする疾患が増えてきており、食品自体にこれら疾患を予防する機能をもたせ、食生活を通し健康を維持していくという社会状況が生まれています。食品産業、特に新潟県において主要な酒・醤油・味噌・米菓産業や水産加工産業のさらなる発展を目指すためには、新たな食品開発や食品そのものに機能(病気予防)をもたせる高度化等を進めていく必要があります。このような背景のもと、健康・予防科学の基礎及び応用研究を推進し機能性食品開発を進める場としてご活用ください。
◇研究・実験室
・培養液から有用な物質を採取する。
・中規模培養装置(ジャーファメンター)により一定量の酵母等を培養する。
・動物実験を行う。
・細胞培養を行う。
以上の研究・実験の場としてご活用ください。
◇分析・測定室
・天然物の科学的構造を決定する。
・得られた物質の薬理作用を調べる。
以上の分析・測定の場としてご活用ください。